Off-Plan Luxury Villa for Sale in Ayios Tychonas, Limassol | Cyprus Real Estate & Permanent Residency Investment

  • Agios Tychon, Limassol
  • 6 Beds
  • 6 Baths
  • Ref: 18948
€3,340,000+VAT
Add to Favorites

Property details

  • Property type: Detached Villa
  • Total covered area: 775 m²
  • Plot area: 880 m²
  • Basement area: 350 m²
  • Roof garden area: 265 m²
  • Bedrooms: 6
  • Bathrooms: 6
  • Toilets: 8
  • Parking spaces: 8
  • Living rooms: 1
  • Kitchens: 1

Other information

  • Furnished: Unfurnished
  • Status: Off plan
  • Energy efficiency rating: A
  • Basement: Yes

Property description

Discover a rare opportunity to own an exceptional off-plan luxury villa in Ayios Tychonas, Limassol — one of the most exclusive and desirable residential areas in Cyprus. This modern detached villa blends high-end architecture with breathtaking Mediterranean sea views, mountain panoramas, and cutting-edge smart-home technology.

Designed for buyers seeking a premium home in Cyprus or a secure investment leading to Cyprus permanent residency, this project stands out as a landmark in Limassol’s luxury real estate market.

The villa is off-plan, meaning construction will begin immediately once the sales agreement is signed, with delivery within 24 months. This provides investors with an attractive opportunity to purchase at pre-construction pricing and benefit from potential capital appreciation during the build period.

Property overview

Located on a hilltop plot of 880 m², the villa offers a total covered area of 775 m², including a 350 m² basement and a 265 m² roof garden. The residence is designed to showcase panoramic views of both the sea and Troodos mountains while ensuring absolute privacy and comfort.

The architecture combines minimalistic lines with natural materials such as stone and glass, creating a contemporary yet timeless Mediterranean design.

Layout and interior features

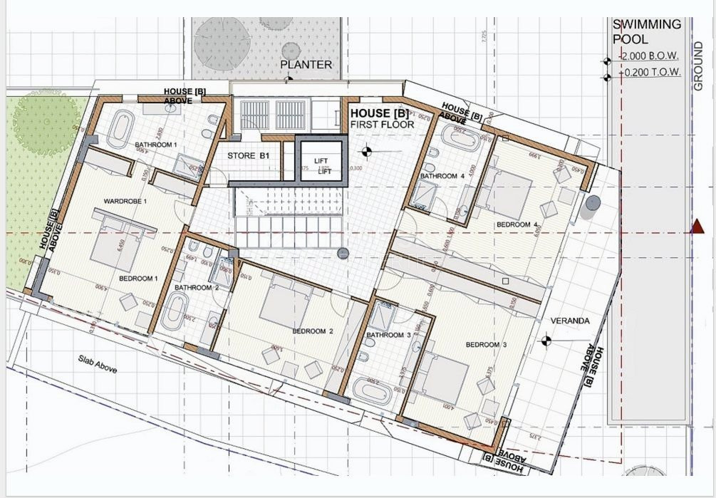
The villa includes six bedrooms (four en-suite bedrooms on the first floor and two additional bedrooms in the basement), six bathrooms, and two guest WCs. The master suite enjoys a private terrace with sea views, while all rooms are finished with premium materials including Italian marble floors, bespoke joinery, and top-of-the-line fixtures.

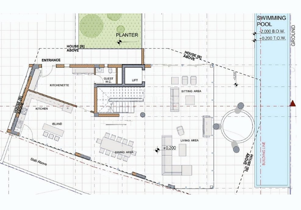
A private lift connects all levels of the property. The basement houses a luxury wellness area featuring a gym, spa suite with sauna, hammam, and Jacuzzi, as well as a secure emergency room and private parking for up to eight cars with a car elevator.

The ground floor is designed around an open-plan living, dining, and kitchen space with floor-to-ceiling sliding doors that lead to a spacious terrace and a 20-metre heated swimming pool designed for both salt and freshwater systems.

Technical specifications

• Six bedrooms, six bathrooms, two guest WCs
• Plot size 880 m², covered area 775 m², basement 350 m², roof garden 265 m²
• Underfloor heating, VRV air-conditioning, air-heat pumps, diesel heating and solar water system
• Smart-home automation with Siemens control system, alarm, and CCTV
• Photovoltaic hybrid system 15 kW for energy efficiency
• Heated pool with safety cover
• Landscaped garden and panoramic roof terrace with outdoor entertainment area
• Indoor lift, car elevator, garage for 6–8 cars
• Spa, gym, jacuzzi, sauna, hammam

Location advantages

Ayios Tychonas (Agios Tychonas) is one of Limassol’s most prestigious areas, known for its luxury villas, sea-view residences, and proximity to five-star hotels such as the Four Seasons and Amathus. The area combines tranquility, security, and quick access to Limassol’s coastline, international schools, restaurants, and marinas.

This property is ideal for international buyers seeking a Cyprus luxury villa for sale, a Limassol real estate investment, or an exclusive residence with strong long-term value.

Investment and residency benefits

This off-plan villa qualifies as an ideal investment option for buyers aiming to obtain Cyprus permanent residency through property acquisition. Under current guidelines, foreign investors purchasing high-value residential property in Cyprus may apply for permanent residency, provided they meet the required financial criteria.

Owning a luxury villa in Limassol — especially in a location such as Ayios Tychonas — not only ensures lifestyle benefits but also aligns with Cyprus’ international residency programs. The property offers full ownership (freehold) and represents a stable long-term investment in one of the fastest-growing markets of the European Union.

Why buy off-plan

Buying an off-plan villa in Cyprus offers significant advantages:

Customization of interior finishes and materials according to your preferences

More favorable pricing compared to completed homes

Strong appreciation potential during construction

Modern building standards ensuring energy efficiency and low maintenance costs

This particular villa will begin construction immediately after signing the sales agreement, and completion is expected within 24 months. Upon delivery, the residence will be ready for immediate occupation — a true turnkey luxury home.

Summary

This luxury villa in Ayios Tychonas, Limassol, represents the best of Cyprus real estate — an off-plan investment opportunity that combines contemporary architecture, stunning views, advanced technology, and eligibility for permanent residency.

Whether you are looking to relocate, invest for long-term rental income, or secure a second home by the Mediterranean, this villa delivers unmatched value.

It stands as one of the top properties in the category of Cyprus luxury villas for sale, Limassol villas for sale, and Cyprus real estate investments for international buyers.

Frequently Asked Questions

What does “off-plan” mean?
It means the villa is not yet built. Construction begins immediately once you sign the sales agreement. This allows you to secure the property early and benefit from better pricing.

When will the villa be delivered?
Delivery is scheduled within 24 months from signing the sales agreement.

Is this villa eligible for the Cyprus Permanent Residency Program?
Yes. Purchasing a high-value residential property in Cyprus such as this qualifies you to apply for permanent residency. Consult a licensed lawyer to confirm your eligibility and current requirements.

Where is Ayios Tychonas located?
Ayios Tychonas is a prestigious coastal suburb east of Limassol city centre, near the Amathus archaeological site and some of the island’s best beaches, hotels, and fine dining options.

What are the main features of this villa?
Six bedrooms, six bathrooms, two guest WCs, heated pool, spa, gym, sauna, hammam, Jacuzzi, panoramic views, roof garden, smart home systems, energy-efficient hybrid solar system, and a large basement garage.

Is customization possible?
Yes. Since this property is off-plan, you can choose materials, finishes, and certain layout elements before construction starts.

What type of ownership is offered?
The property is offered as freehold ownership, giving you full rights and title.

Can international buyers purchase property in Cyprus?
Yes. Non-EU citizens may buy property in Cyprus under specific conditions, and foreign ownership is protected by Cypriot law.

Is this property suitable for renting?
Absolutely. The villa’s design, location, and specifications make it ideal for high-income rental or short-term luxury holiday letting.

To schedule a private viewing or personalized consultation, please contact us today. Our team will be happy to provide full details, including architectural drawings, floor plans, payment schedules, and customization options. Secure your unit now in this exclusive off-plan Ayios Tychonas luxury villa project in Limassol, Cyprus — an exceptional investment and lifestyle opportunity.

Features

  • Aircondition, Central system
  • Elevator
  • Heating, Underfloor
  • Landscaped garden
  • Maid's room
  • Parking, Covered
  • Pool, Private, Heated
  • Sauna
  • Solar photovoltaic panels
  • Solar water heater
  • Spa
  • Storage
  • Alarm system
  • Balcony
  • Bath
  • CCTV
  • City view
  • Combined kitchen and dining area
  • Double glazing
  • Easy access to highway
  • Easy access to main roads
  • En suite bathroom
  • En suite shower
  • Fitted wardrobes
  • Garden
  • Guest WC
  • Guestroom
  • Home cinema
  • Indoor fireplace
  • Internal stairs
  • Jacuzzi
  • Kitchenette
  • Laundry room
  • Luxury specifications
  • Modern design
  • Mountain view
  • Near amenities
  • Open plan
  • Panoramic view
  • Roof garden
  • Sea view
  • Shower
  • Sound insulation
  • Spacious rooms
  • Steam bath

Similar properties

For Sale: Exquisite Luxury 6 Bedroom Villa with Panoramic Mountain Views in Germasogeia, Limassol

For Sale: Exquisite Luxury 6 Bedroom Villa with Panoramic Mountain Views in Germasogeia, Limassol

Germasogeia, Limassol
  • 6 Beds
  • 7 Baths
  • Ref: 31576
€4,300,000+VAT
Luxurious 5 bedroom villa for sale in Agios Tychonas, Limassol

Luxurious 5 bedroom villa for sale in Agios Tychonas, Limassol

Agios Tychon, Limassol
  • 5 Beds
  • 3 Baths
  • Ref: 27554
€3,500,000
Stunning  Villa with Five Bedrooms for sale  in Agios Tychon

Stunning Villa with Five Bedrooms for sale in Agios Tychon

Agios Tychon, Limassol
  • 5 Beds
  • 4 Baths
  • Ref: 27406
€2,990,000
Luxury 6 bedrooms detached villa for sale in Agios Tychonas, Limassol

Luxury 6 bedrooms detached villa for sale in Agios Tychonas, Limassol

Agios Tychon, Limassol
  • 6 Beds
  • 5 Baths
  • Ref: 25298
€2,800,000+VAT
Luxury Six Bedroom Villa with Panoramic View in Agios Tychon, Limassol

Luxury Six Bedroom Villa with Panoramic View in Agios Tychon, Limassol

Agios Tychon, Limassol
  • 6 Beds
  • 1 Baths
  • Ref: 24376
€4,000,000+VAT
Luxury 5 bedroom villa with swimming pool for sale in Agios Tychon, Limassol

Luxury 5 bedroom villa with swimming pool for sale in Agios Tychon, Limassol

Agios Tychon, Limassol
  • 5 Beds
  • 1 Baths
  • Ref: 24331
€4,185,000+VAT
Contact us