Two , three-Bedroom Luxury Villas for Sale in Tala, Paphos – Sea View

  • Tala, Paphos
  • 6 Beds
  • 6 Baths
  • Ref: 31697
€1,150,000+VAT
Add to Favorites

Property details

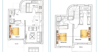
  • Property type: Detached Villa
  • Total covered area: 213 m²
  • Plot area: 684 m²
  • Bedrooms: 6
  • Bathrooms: 6
  • Toilets: 6

Other information

  • Furnished: Unfurnished
  • Status: Off plan
  • Energy efficiency rating: Pending

Property description

🏡 Luxury Twin Villas in Tala, Paphos – Sea View, Pool Option & Parking | €1,150,000 + VAT

Property Overview

Discover two beautifully designed villas (1 & 2) in the serene area of Tala, Paphos, offering unobstructed sea views and the essence of Mediterranean outdoor living.
Both homes are situated in a prime location near all amenities and the Monastery of Saint Neophytos. Perfect for families, investors, or as a luxury retreat.

🌅 Key Features

Villa 1:

Spacious living & dining areas

Fully equipped kitchen

Private parking

Optional swimming pool

Villa 2:

Living & dining rooms

Kitchen

Private parking

Optional swimming pool

Lobby & fireplace

Storage area

Common Highlights:

Breathtaking sea and mountain views

Tranquil environment with fresh air

Modern architecture and natural finishes

Designed for optimal indoor-outdoor living

Price: €1,150,000 + VAT (for both villas as one purchase)

❓ Frequently Asked Questions (FAQ)

Q1: Are both villas sold together or separately?
A1: The villas (1 & 2) are sold together as one property package for €1,150,000 + VAT.

Q2: Is there a swimming pool?
A2: Each villa includes an optional swimming pool—customizable based on buyer preference.

Q3: Where are the villas located?
A3: The villas are located in Tala, Paphos, near the Monastery of Saint Neophytos, offering convenient access to all local amenities.

Q4: What are the main features?
A4: Both villas include living and dining areas, private parking, kitchens, and stunning sea views, with Villa H2 featuring a fireplace and extra storage.

Q5: Is the area suitable for permanent residence or investment?
A5: Absolutely — Tala is a sought-after residential area ideal for permanent living, holiday retreats, or property investment with excellent rental potential.

Experience the ultimate blend of luxury, serenity, and Mediterranean elegance in the heart of Tala, Paphos.
These twin villas (1 & 2) offer a rare opportunity to own a dual-property estate with panoramic sea views, modern comfort, and timeless design - all within minutes of everyday conveniences.

Live beautifully. Invest wisely. Embrace Mediterranean living at its finest.

Similar properties

Exclusive Residential four bedroom Villa in Chloraka – Comfort, Privacy, and Elegance

Exclusive Residential four bedroom Villa in Chloraka – Comfort, Privacy, and Elegance

Chlorakas, Paphos
  • 4 Beds
  • 4 Baths
  • Ref: 33422
€850,000+VAT
Exclusive Contemporary Villas in Chloraka – Elegant and Spacious four bedroom Homes

Exclusive Contemporary Villas in Chloraka – Elegant and Spacious four bedroom Homes

Chlorakas, Paphos
  • 4 Beds
  • 4 Baths
  • Ref: 33421
€895,000+VAT
Resale three Bedroom Sea View Villas in Chloraka, Paphos – Completed & No VAT

Resale three Bedroom Sea View Villas in Chloraka, Paphos – Completed & No VAT

Chlorakas, Paphos
  • 3 Beds
  • 5 Baths
  • Ref: 33182
€1,340,000
Empa Paphos Luxury four Bedroom Villa for Sale with Sea Views

Empa Paphos Luxury four Bedroom Villa for Sale with Sea Views

Empa, Paphos
  • 4 Beds
  • 4 Baths
  • Ref: 32874
€1,100,000
Luxury  three bedroom Villa for Sale in Chloraka, Paphos | Private Pool & Mediterranean Views

Luxury three bedroom Villa for Sale in Chloraka, Paphos | Private Pool & Mediterranean Views

Chlorakas, Paphos
  • 3 Beds
  • 3 Baths
  • Ref: 32224
€955,000+VAT
Experience elegant Mediterranean five bedroom living in Tala, Kamares, with exclusive freehold villas, sea views, private pools, and a vibrant lifestyle in scenic Paphos.

Experience elegant Mediterranean five bedroom living in Tala, Kamares, with exclusive freehold villas, sea views, private pools, and a vibrant lifestyle in scenic Paphos.

Tala, Paphos
  • 6 Beds
  • 4 Baths
  • Ref: 31847
€1,360,000+VAT
Contact us