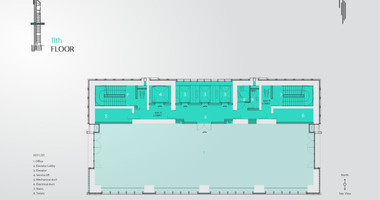
Luxury Office Space of 285sqm for Rent in Limassol

  • Limassol, Limassol
  • Ref: 28021
€20,750/month+VAT
Add to Favorites

Property details

  • Property type: Office
  • Total covered area: 285 m²
  • Toilets: 2
  • Floor: 11
  • Floors: 22
  • Kitchens: 1

Other information

  • Furnished: Unfurnished
  • Year of construction: 2025
  • Status: Under construction
  • Energy efficiency rating: A

Property description

Discover the future of the workplace – a forward-thinking commercial landmark, shaking up the work lifestyle paradigm in Limassol.
The business centre is an exclusive nexus for networking, strategizing, and of course, celebrating success. This executive club goes above and beyond premium meeting and conference facilities. Here distinguished members make use of a range of unparalleled services and amenities.

The tower’s LEED-accreditation acknowledges the healthy and environmentally efficient environment it provides. A symbol of sustainable achievement, LEED provides a globally recognized rating system for green buildings.

Meanwhile, on the 18th floor, the gym is the perfect place to unwind, with its stylish surrounds and double height ceilings.
Sustainable, tech-driven, and people-centric, the tower features 12,600m² of flexible office space, as well as an executive business centre and versatile meeting room facilities. Meanwhile, premium amenities including open green spaces, a gym and social hubs, promote wellness and productivity.

The building’s environmentally conscious green spaces and first-rate public square are designed to foster creativity, collaboration, and wellness. While a modern dining area complete with a beautifully landscaped outdoor terrace provides the hub of social productivity, and a serene space to unwind with outstanding views of the city and the Mediterranean beyond. 

Features

  • Aircondition, Central system
  • Parking, Underground
  • Elevator
  • Storage
  • CCTV
  • Panoramic view
  • Near bus route
  • Near amenities
  • Roof garden
  • Double glazing
  • Handicap accessible
  • 24-hour security
  • Heart of city center
  • Easy access to main roads
  • Easy access to highway
  • Reception
  • Main road
  • Energy efficient doors/windows
  • Near public transport
  • Private bathrooms
  • Server room
  • Kitchen
  • Electric car charger

Similar properties

Luxury offices for rent  in Agios Athanasios

Luxury offices for rent in Agios Athanasios

Agios Athanasios, Limassol
  • Ref: 30646
€22,000/month+VAT
SPACIOUS AND MULTIFUNCTIONAL 600 m2 OFFICE SPACE FOR RENT IN THE BUSSINESS PART OF AGIOS NIKOLAOS

SPACIOUS AND MULTIFUNCTIONAL 600 m2 OFFICE SPACE FOR RENT IN THE BUSSINESS PART OF AGIOS NIKOLAOS

Agios Nicolaos, Limassol
  • Ref: 29150
€20,000/month
Luxury Office Space of 285sqm for Rent in Limassol

Luxury Office Space of 285sqm for Rent in Limassol

Limassol, Limassol
  • Ref: 28025
€21,750/month+VAT
Luxury Office Space of 285sqm for Rent in Limassol

Luxury Office Space of 285sqm for Rent in Limassol

Limassol, Limassol
  • Ref: 28023
€21,500/month+VAT
Luxury Office Space of 285sqm for Rent in Limassol

Luxury Office Space of 285sqm for Rent in Limassol

Limassol, Limassol
  • Ref: 28019
€20,500/month+VAT
Office for Rent Agia Trias, Limassol

Office for Rent Agia Trias, Limassol

Agia Trias, Limassol
  • Ref: 27962
€19,100/month+VAT
Contact us